45 Douglas StreetSuffield, CT 06078
Due to the health concerns created by Coronavirus we are offering personal 1-1 online video walkthough tours where possible.



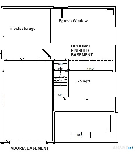
**TO BE BUILT** Gorgeous new construction at an affordable price! This beautifully built 3-bedroom, 2.5-bath Colonial offers classic charm with modern finishes, featuring a covered front porch, back patio, attached garage, and a ready-to-finish lower level. The open-concept main floor showcases a spacious kitchen flowing into the dining and living areas with quality cabinetry with soft-close hinges, granite countertops, breakfast bar, stainless steel appliances, and stylish fixtures and finishes. A slider leads to the patio-perfect for outdoor dining and relaxing. Upstairs, enjoy a large primary suite with an oversized walk-in closet, generously sized secondary bedrooms, a convenient laundry room, and a bright, functional layout. The attached garage enters into a mudroom with a half bath-ideal for everyday living. The lower level is ready to finish and offers endless possibilities for a home office, rec room, or private gym. Set on a peaceful lot with a beautiful lawn already in place-move right in and enjoy!
| 2 months ago | Listing updated with changes from the MLS® | |
| 4 months ago | Listing first seen on site |
The data relating to real estate for sale on this website appears in part through the SMARTMLS Internet Data Exchange program, a voluntary cooperative exchange of property listing data between licensed real estate brokerage firms, and is provided by SMARTMLS through a licensing agreement. Listing information is from various brokers who participate in the SMARTMLS IDX program and not all listings may be visible on the site. The property information being provided on or through the website is for the personal, non-commercial use of consumers and such information may not be used for any purpose other than to identify prospective properties consumers may be interested in purchasing. Some properties which appear for sale on the website may no longer be available because they are for instance, under contract, sold or are no longer being offered for sale. Property information displayed is deemed reliable but is not guaranteed. Copyright 2026 SmartMLS, Inc.
Last checked: 2026-05-25 10:08 AM UTC.
Did you know? You can invite friends and family to your search. They can join your search, rate and discuss listings with you.